







Industrial Unit For Sale Inverness
PROPERTY ID: 143313
PROPERTY TYPE
Industrial Unit
STATUS
Under Offer
SIZE
392,040 sq.ft
Key Features
Property Details
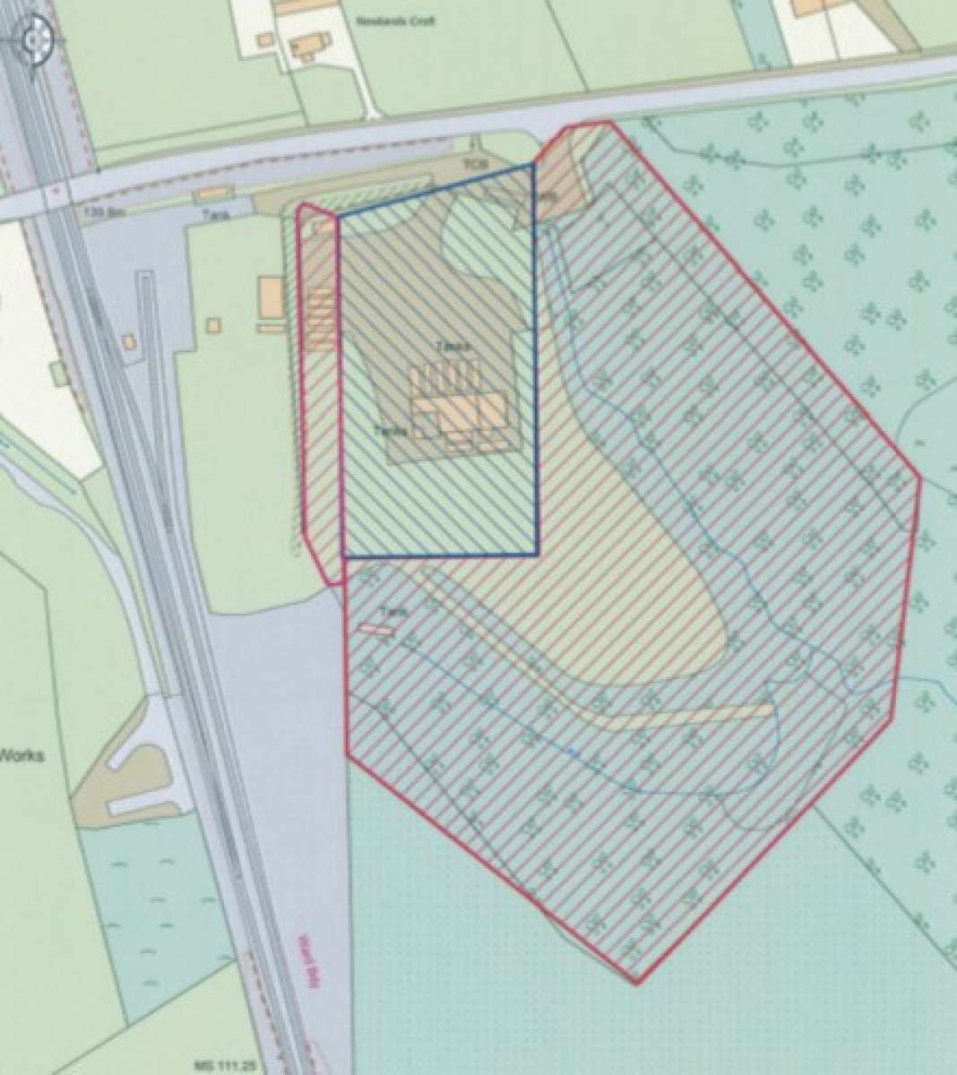
The site is situated to the south of
the B9006 which links Croy and
Inverness. It lies approximately 7
miles to the east of Inverness and
3 miles to the south west of Croy
Village. Surrounding properties
comprise a mixture of farming
land and residential dwellings.
The Site Is Irregular In Shape With
A Gradual Slope To The River Nairn
Towards The South. The Property
Comprises A Former Bitumen
Storage And Production Facility.
The Site Is Accessed Straight Off
The B9006 Allowing Easy Access
To Inverness And The A96. The
Site Comprises A Mixture Of
Open Storage Land Laid With Hard
Standing And Heavy Woodland /
Vegetation.
A Title Plan Is Available On
Application To The Marketing
Agent.
Secure Yard / Laydown Area / Open Storage
Area Extends To Approximately 9 Acres
Net Usable Area Of Approximately 3.5 Acres
Guide Price: £350,000
Storage Unit Extending To Approx. 2,750 Sq.ft
For Sale - Industrial / Land / Secure Storage